小型金属ボックス 正転逆転スイッチ
【クラウスアンドナイマー】
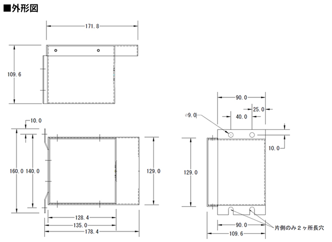
屋根付き小型金属ボックス
●CHR10 A401*J-8001 JST 定格通電電流20A
<特長>
●安全・簡単にモーターの正転/逆転切替が可能
●丸型圧着端子対応
●既存設備に関単に設置可能
●スイッチは配線後に取付可能な分離タイプ
-
仕様
-
| 定格通電電流 | 定格絶縁電圧 | 利用カテゴリー AC-23A @3φ200V | 利用カテゴリー AC-23A @3φ400V | 型式 |
|---|---|---|---|---|
| 20A | 690V | 2.2kW | 5.5kW | CHR10 A401*J-8001 JST |





