小型金属ボックス ディスコネクトスイッチ
【クラウスアンドナイマー】
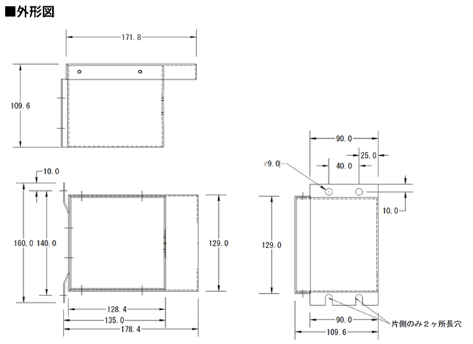
屋根付き小型金属ボックス
●KHR20B T203*J-8019 JST 定格通電電流20A
●KHR32 T203*J-8019 JST 定格通電電流30A
<特長>
●主回路(動力回路)の開閉
●丸型圧着端子対応 ※主接点のみ
●OFF位置のみ南京錠取付可能
●断路保証(接点溶着時の事故防止)
●スイッチは配線後、取付可能な分離タイプ
型式(3極、1NO1NC、赤/黄パドロックハンドル)
-
仕様
-
| 定格通電電流 | 定格絶縁電圧 | 利用カテゴリー AC-23A @3φ200V | 利用カテゴリー AC-23A @3φ400V | 型式 |
|---|---|---|---|---|
| 20A | 690V | 4.5kW | 10kW | KHR20B T203*J-8019 JST |
| 32A | 690V | 7.5kW | 16kW | KHR32 T203*J-8019 JST |





